-
钢制闸阀所有用金属钢材料浇铸成铸件加工的闸阀统称铸钢闸阀。与铸钢闸阀相对应的还铸铁闸阀、锻钢闸阀,可锻铸铁闸阀。铸钢闸阀的启闭件是闸板,闸板的运动方向与流体方向相垂直,闸阀只能作全开和全关 , 不能作调节和节流。闸板有两个密封面 , 最常用的模式闸板阀的两个密封面形成楔形、楔形角随阀门参数而异 , 通常为 50, 介质温度不高时为 2°52' 。楔式闸阀的闸板可以做成一个整 体,叫做刚性闸板;也可以做成能产生微量变形的闸板 , 以改善其工艺性 , 弥补密封面角度在加工过程中产生的偏差 , 这种闸板叫做弹性闸板。该阀具有开关轻巧、密封可靠、弹性记忆佳及使用寿命等显著优点。可广泛用于自来水、污水、建筑、石油、化工、食品、医药、轻纺、电力、船舶、冶金、能源系统等体管线上作为调节和截流装置使用。
-
产品详细
所有用金属钢材料浇铸成铸件加工的闸阀统称铸钢闸阀。与铸钢闸阀相对应的还铸铁闸阀、锻钢闸阀,可锻铸铁闸阀。铸钢闸阀的启闭件是闸板,闸板的运动方向与流体方向相垂直,闸阀只能作全开和全关 , 不能作调节和节流。闸板有两个密封面 , 最常用的模式闸板阀的两个密封面形成楔形、楔形角随阀门参数而异 , 通常为 50, 介质温度不高时为 2°52' 。楔式闸阀的闸板可以做成一个整 体,叫做刚性闸板;也可以做成能产生微量变形的闸板 , 以改善其工艺性 , 弥补密封面角度在加工过程中产生的偏差 , 这种闸板叫做弹性闸板。该阀具有开关轻巧、密封可靠、弹性记忆佳及使用寿命等显著优点。可广泛用于自来水、污水、建筑、石油、化工、食品、医药、轻纺、电力、船舶、冶金、能源系统等体管线上作为调节和截流装置使用。
产品特点:
流体阻力小 , 密封面受介质的忡刷和侵蚀小。开闭较省力。介质流向不受限制 , 不扰流、不降低压力。结构简单 , 结构长度短,制造工艺性好,耐高温耐高压可选材料多,适用范围广。
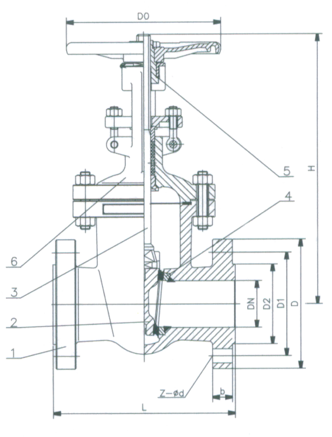
产品小样图

钢制闸阀产品链接:http://www.outesi.cn/products/653.html -
核心优势
欧特斯阀门——流体阀门控制系统专业制造商
工厂直销性价比高,是您的怡心之选
-
一站式一站式服务模式,提供产品及其解决方案,选择欧特斯就是选择放心
-
供货足海量备货,致力于中长期批量售货,货源稳定。选择欧特斯选择安心
-
性价比不买贵的,只买对的。高性价比是欧特斯的生存之道,是您的怡心之选
-
有保障采用严格按照国家标准检验的原材料及零配件,产品质量有保证
-
系列全齐全的产品系列是保障您一站式完美采购的开始,几十种品种,上千种规格。满你所需,只因欧特斯更懂你
-
产品优优越的产品性能,是欧特斯致胜的保障,多年产品生产研发经验,是您放心之选
-
-
联系我们
-
固定电话13820705099 -
产品咨询13662178989 -
企业邮箱sale@outesi.cn -
公司地址天津市津南区小站镇营盘圈工业区
-
-
相关产品推荐
手机:13662178989
网址:www.outesi.cn
邮箱:sale@outesi.cn
地址:天津市津南区小站镇营盘圈工业区